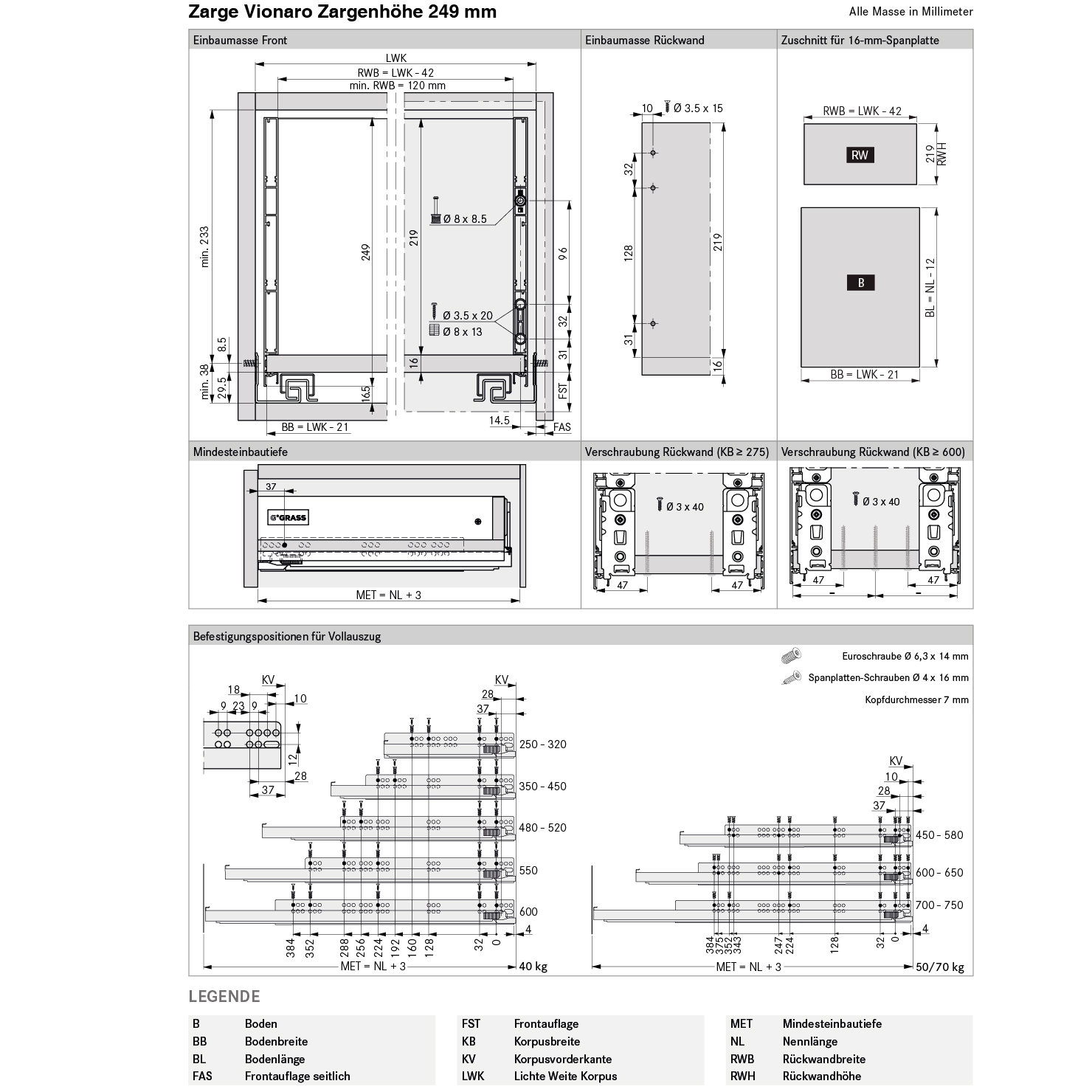
Zarge GRASS® Vionaro V13 Zargenhöhe 249 mm, für Holzrückwand



58.214.23-77



prev
next

Zarge GRASS® Vionaro V13 Zargenhöhe 249 mm, für Holzrückwand
58.214.
Aluminium silbergrau, graphit oder weiss, Zargenbreite 13 mm,
3-dimensionale Frontverstellung, integrierte Seiten- und Höhenverstellung, Neigungsverstellung, keine Bodenbearbeitung notwendig, werkzeuglose Frontmontage,
ohne Einpressdübel für Rückwände,
Set bestehend aus je 1 Zarge links und rechts
- Unterflur-Führungssystem Dynapro Vollauszug siehe 58.008.02-89
- Montageset Vionaro zum Anschrauben siehe 58.218.07-09
- Montageset Vionaro mit Spreizdübel siehe 58.218.27-29
- Querteiler und Halter für Zarge siehe 58.218.51-58
- Einpressdübel für Rückwände siehe 58.219.98
- Schubladen-Unterteilungsprofil siehe 58.271.21-79
- Zargenmontagevorrichtung Tecmator ZMV-TP4 siehe 99.620.30
- Zargenmontagevorrichtung Tecmator ZMV-FIX H250 siehe 99.648.27
- Montagehilfe Grass Vionaro siehe 99.620.01
- Schubladenzwinge Grass Nova Pro und Vionaro siehe 99.620.20

- Marke
- Grass
- Produktart
- Zarge
- Produktlinie
- Vionaro
- Zargenhöhe
- 249
- Material
- Aluminium
































