Schiebetürbeschlag Holz, HAWA Regal A 25 H Forslide



49.050.11



prev
next

Schiebetürbeschlag Holz, HAWA Regal A 25 H Forslide
49.050.
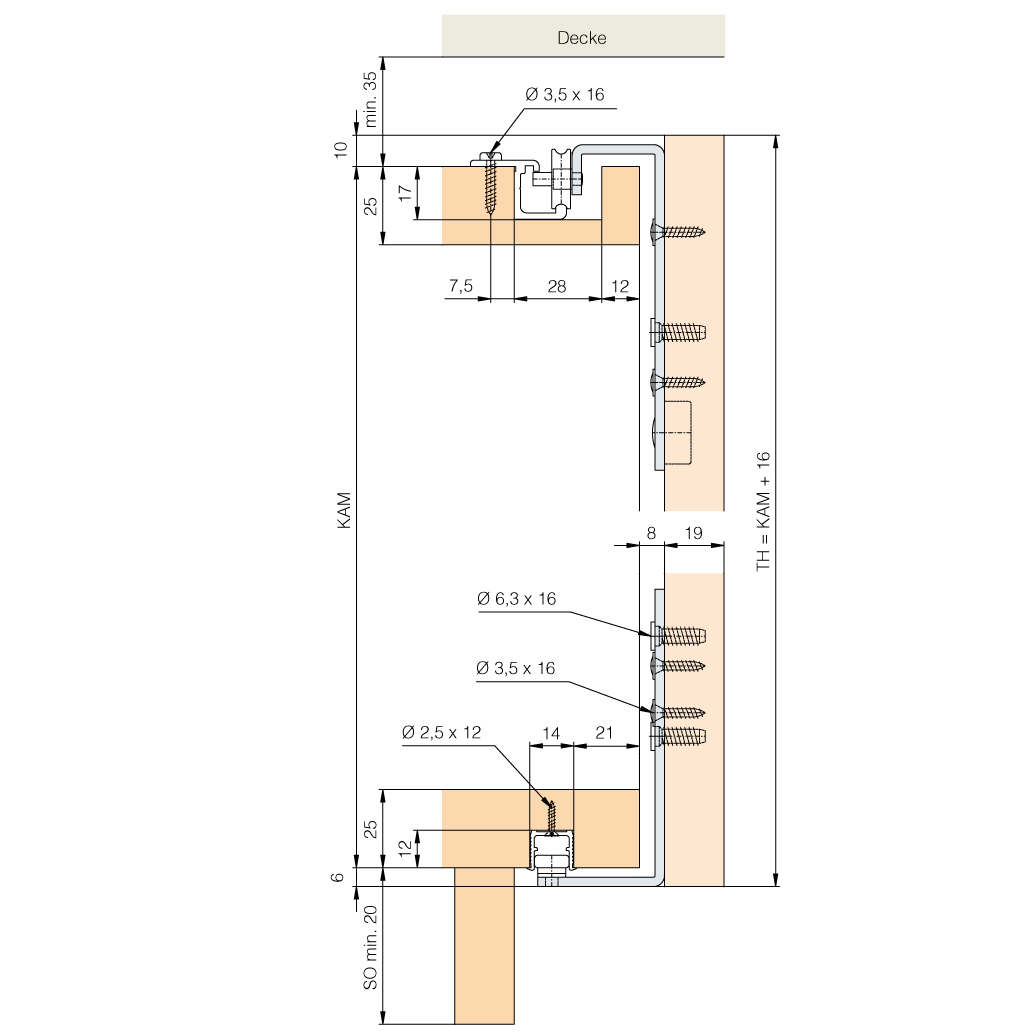
für Schrankschiebetüren aus Holz bis 25 Kilo, Holzdicke 19 - 25 mm, Türgrösse (Breite x Höhe) max. 1200 x 2400 mm, Türe in der ganzen Höhe vor dem Regal oder Schrank laufend, Lauf- und Führungsschienen verdeckt, nicht sichtbar, ohne Lauf- und Führungsschienen, ohne Zubehör

- Marke
- Hawa
- Produktart
- Schiebetürbeschlag
- System
- Regal A 25
- Ausführung
- für Holztüren
- Anzahl Flügel
- 1
- Türgewicht max.
- 25 kg
- Türbreite
- < 1200 mm
- Türhöhe
- < 2400 mm
- Türstärke
- 19 - 25 mm
- Türart
- Holz
- Montage
- Forslide
- Konstruktion
- Obenlaufend
- Fabriknummer
- 056.3077.171



