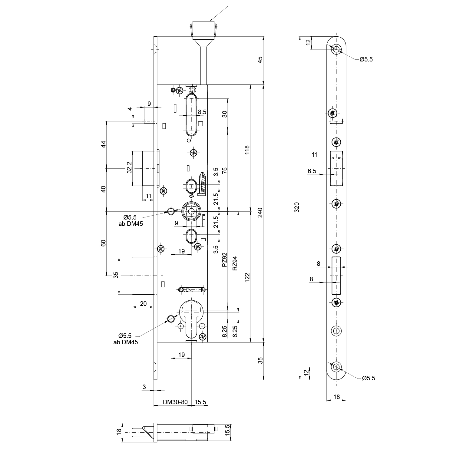
Panik-Einsteckschloss MSL 14576PBa-SV, sFlipLock check, 1-flüglig


17.778.06-68, Abbildung = DIN Links



Panik-Einsteckschloss MSL 14576PBa-SV, sFlipLock check, 1-flüglig
17.778.
Diese Einsteckschlösser sind mit Überwachungs- / Rückmeldekontakten ausgestattet. (Überwachung Steuerfallenstatus, Türdrückerstatus, Riegelstatus und Zylinderstatus). Auf der Tür-Aussenseite ist ebenfalls ein Türdrücker angebracht. Im unverschlossenen Zustand lässt sich die Tür von beiden Seiten öffnen. Im verschlossenen Zustand kann die Tür nicht von aussen, jedoch von innen immer über den Türdrücker, Paniktürbeschlag oder Pushbar, geöffnet werden (Panikfunktion), der Langriegel wird zurückgezogen und gleichzeitig wird die Kippfalle weich. Wenn die Türe schliesst, verriegelt das Schloss automatisch (Selbstverriegelung). Der Vierkant (Nuss) ist bei der Panikfunktion B geteilt. Diese Panikfunktion eignet sich für Türen, die zeitweise auch von aussen geöffnet werden müssen (Tagesbetrieb). Tagesbetrieb ist aktivierbar über den Zylinder, mit einer Schlüsseldrehung in Öffnungsrichtung bis an den Anschlag, dann ist der Türdrücker auf der Aussenseite angekoppelt. Wenn die Türe schliesst, verriegelt das Schloss automatisch (Selbstverriegelung).
Ausführung:
Panikfunktion B mit Kontakten, auswärts öffnend, 1-flüglig, selbstverriegelnd, Stulphöhe 320 mm
Anwendungsgebiet:
- Für Zutrittskontrolle und Überwachung im Gebäudemanagement:
- Sicherheits-, Fluchtweg- und Feuerschutztüren im Objektbereich
- Hausinnenbereich in Kombination mit Zutrittskomponenten
Normen:
- Zulassung nach SN EN 179
- Zulassung nach EN 1125
- Zulassung nach EN 1634-1 bis 3
- Einbruchhemmend bis Klasse RC2 in geeigneten Türsystemen erreichbar
Hinweis:
- Geeignet für Drehknopf- und Freilaufzylinder
- Nicht geeignet für externe Riegelkontakte
- Schliessbleche siehe 14.168.
- Schlossunterlage siehe 14.168.61+62
- Anschlusskabel siehe 17.273.96-97
- Andere Ausführungen auf Anfrage.

- Marke
- MSL
- Produktart
- Panik-Einsteckschloss
- Nuss
- 9
- Stulpbreite
- 20 mm
- Stulpart
- Rund
- Panikfunktion
- B
- Fluchtrichtung
- auswärts
- Stulplänge
- 320 mm
- Stulpstärke
- 3 mm
- Anzahl Flügel
- 1-flüglig
- Fluchtwegnorm
- SN EN 179 / 1125
- Verriegelung
- Selbstverriegelung (SV)
- Brandschutznorm
- geprüft
- Widerstandsklasse
- ES1 / RC2
- Türart
- Holz
- Bedienung
- Schlüsselbedient
- Überwachung
- ja
- Touren
- 1-tourig
- Riegelvorschub
- 20 mm
- Material
- Edelstahl, Stahl
- Oberfläche Stulp
- Edelstahl matt
- System
- sFlipLock check
- Funktion
- mechanisch










