Einfrässchliessleiste GLUTZ B-1157.721, zu Mehrpunktverriegelung TREPLANE


14.072.04


prev
next

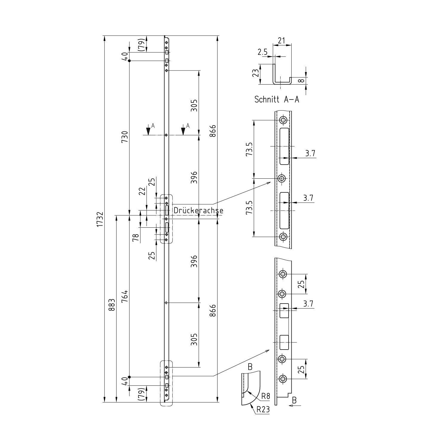
Einfrässchliessleiste GLUTZ B-1157.721, zu Mehrpunktverriegelung TREPLANE
14.072.
Edelstahl matt, mit Ausschnitt für Riegel und Falle, sowie für Riegelbolzen oben und unten von Mehrpunktverriegelungen und Dreifallenschlösser, universal DIN rechts und DIN links verwendbar, ohne Schrauben
- Mehrpunktverriegelung siehe 14.002. bis 14.018.
- Einfrässchliessleiste B-1156 mit Steg 6,5 mm siehe 14.072.06
- Einfrässchliessleiste V-1157 verstellbar siehe 14.072.17-18
- Einfräslehre siehe 99.052.
- Fräser für Einfräslehre siehe 88.664.
- Schrauben SK Ø 4 mm.

- Anschlagsrichtung
- DIN universal
- verwendbar
- universal
- Material
- Edelstahl matt
- Länge
- 1732 mm
- Breite
- 21 mm
- Oberfläche
- Edelstahl matt
- Tiefe
- 23 mm
- Stärke
- 2,5 mm
- Stegbreite
- 3,7 mm
- Marke
- Glutz
- Produktart
- Schliessleiste
- Brandschutz
- ungeprüft
- Fabriknummer
- B-1157.721




