Verrouillage multipoints anti-panique MSL 24576PBa-SV, mFlipLock check, 1 vantail


17.718. / 17.719., figure = DIN gauche



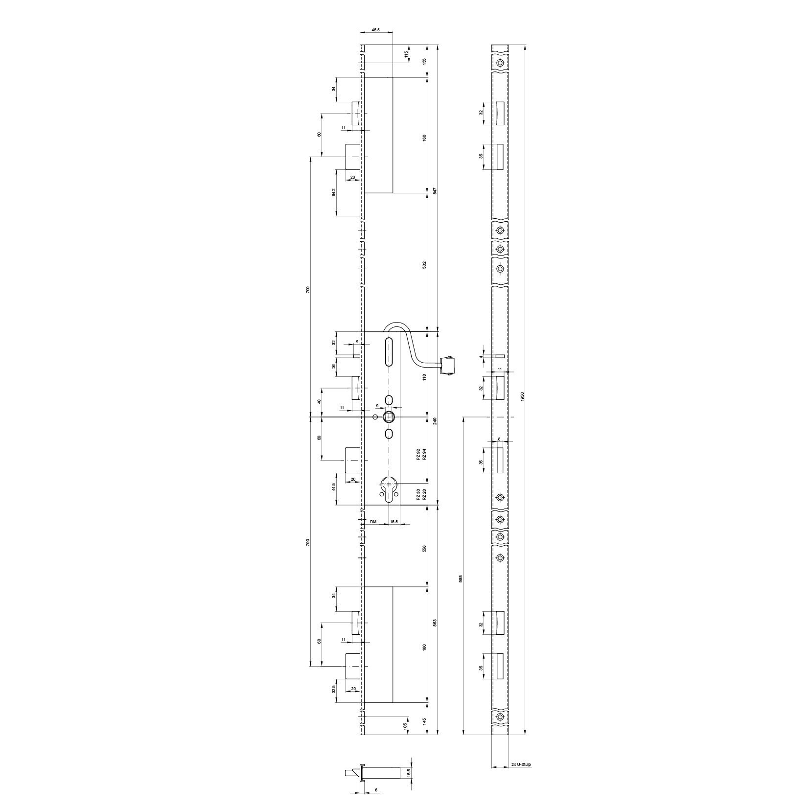
Verrouillage multipoints anti-panique MSL 24576PBa-SV, mFlipLock check, 1 vantail
17.718.
Ces serrures multipoints sont équipées de contacts de surveillance / signalisation. (Surveillance de l'état du pêne pilote, de la poignée, du pêne dormant et du cylindre). Le côté extérieur comporte également une poignée de porte. En état déverrouillé, la porte peut être ouverte des deux côtés. En état verrouillé, la porte ne peut pas être ouverte de l'extérieur, mais par contre elle peut toujours être ouverte de l'intérieur par l'actionnement de la poignée, de la garniture anti-panique ou de la barre anti-panique de poussée (fonction anti-panique) ce qui génère le rappel des 3 pênes longs et la libération des 3 becs de cane pivotants. Lorsque la porte ferme, la serrure verrouille automatiquement (autoverrouillage). La tige carrée (fouillot) est divisée en deux parties pour une fonction anti-panique B. Cette fonction anti-panique convient pour des portes qui doivent parfois également être ouvertes de l'extérieur (fonction jour). La fonction jour peut être activée via le cylindre par un tour de clé dans le sens d'ouverture jusqu'au butoir, ce qui génère l'embrayage de la poignée extérieure. Lorsque l'on ferme la porte, la serrure verrouille automatiquement (autoverrouillage).
Exécution:
Fonction anti-panique B avec contacts, s'ouvrant vers l'extérieur, 1 vantail, verrouillage automatique, hauteur de têtière 1950 mm
Domaine d'utilisation:
- Pour le contrôle d'accès et la surveillance dans la gestion des bâtiments:
- Portes de sécurité, d'issues de secours et coupe-feu dans le domaine du bâtiment
- Intérieur de la maison en combinaison avec des composants d'accès
Normes:
- Homologation selon EN 179
- Homologation selon EN 1125
- Homologation selon EN 1634-1 à 3
- Possibilité d'atteindre une protection anti-effraction de catégorie RC2 sur des systèmes de porte appropriés
Remarque:
- Compatible avec cylindre à bouton et cylindre débrayable
- Contact externe de commutation de verrou non autorisé
- Gâches, voir 14.168.
- Rallonge de têtière, voir 14.169.11-27
- Câble de raccordement, voir 17.273.96-97
- D'autres exécutions sur demande.

- Marque
- MSL
- Type de produit
- Verrouillage multipoints anti-panique
- Fouillot
- 9
- Fonction d'évacuation
- B
- Sens d'évacuation
- à l'extérieur
- Longueur de têtière
- 1950 mm
- Nombre de vantaux
- 1 vantail
- Fonction panique
- SN EN 179 / 1125
- Verrouillage
- Auto-verrouillage
- Norme de sécurité incendie
- vérifié
- Classe de résistance
- ES2 / RC3
- Fonctionnement
- Fonctionnement par une clé
- Surveillance
- oui
- Tours
- 1 tour
- Avancement du pêne
- 20 mm
- Matériau
- acier inoxydable, acier
- Surface de la têtière
- acier inoxydable mat
- Système
- mFlipLock check
- Fonction
- mécanique
















