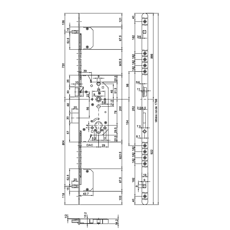
Verrouillage multipoints anti-panique MSL Tribloc 1859 PBa (testé WK3), têtière ronde 18 x 1788 mm inox mat


17.236.06-38, Figure = DIN à gauche


prev
next

Verrouillage multipoints anti-panique MSL Tribloc 1859 PBa (testé WK3), têtière ronde 18 x 1788 mm inox mat
17.236.
Pour porte d'issue de secours à 1 vantail
testé selon DIN EN 179 / DIN EN 1125, verrouillage 4 points par pêne dormant principal, 2 pênes dormants et blocage du pêne demi-tour, avance du pêne dormant et du pêne demi-tour de 20 mm, 1 tour, en acier spécial de haute qualité, fouillot divisé 9 mm, sans fonction de remplacement
centre du fouillot jusqu'au haut du boîtier de serrure 51,5 mm
- Pour la têtière de remplissage, voir 14.126.05
- Gâches, voir 14.127. à 14.128.
- Gâche profilée à entailler, voir 14.129.
- Tige carrée anti-panique, voir 17.285.
- Exécution avec fonction B vers l'intérieur disponible en usine.
- Également disponible en usine avec têtière 20 mm.
- Vis à tête fraisée Ø 4 mm.

- Marque
- MSL
- Type de produit
- Verrouillage multipoints anti-panique
- Découpe
- Cylindre rond
- Entraxe
- 78 mm
- Fouillot
- 9
- Larg. têtière
- 18 mm
- Type de têtière
- Rond
- Fonction d'évacuation
- B
- Sens d'évacuation
- à l'extérieur
- Longueur de têtière
- 1788 mm
- Épaisseur de la têtière
- 3 mm
- Nombre de vantaux
- 1 vantail
- Fonction panique
- SN EN 179 / 1125
- Verrouillage
- Manuel
- Norme de sécurité incendie
- vérifié
- Classe de résistance
- ES2 / RC3
- Type de porte
- Bois
- Fonctionnement
- Fonctionnement par une clé
- Fonction jour ou nuit
- Fonction jour
- Tours
- 1 tour
- Avancement du pêne
- 20 mm
- Matériau
- acier inoxydable, acier
- Système
- Tribloc
- Fonction
- mécanique


















