Ferrure de porte coulissante bois, garniture complète HAWA Junior 100 Z / Z Pocket






Junior 100 Z







Ferrure de porte coulissante bois, garniture complète HAWA Junior 100 Z / Z Pocket
21.101.
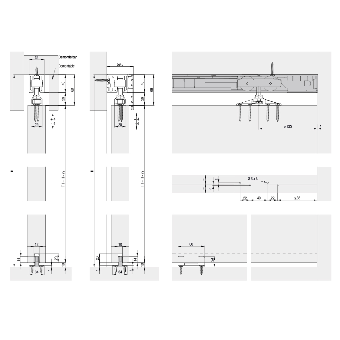
Ferrure pour portes en bois jusqu'à 100 kg se déplaçant en partie supérieure, avec rail de roulement en applique, ouverture sans obstacle, au choix avec Softstop, amortisseur SoftMove et/ou butée à ressort, sans rail de roulement
Junior 100 Z : montage mural ou au plafond,
Junior 100 Z Pocket : solution de poche murale, avec SoftMove et/ou SoftStop
Garniture de base composée de :
- chariot à 2 galets, M10, roulement à billes
- Suspension à deux voies
- Kit avec vis de suspension M10, écrous, vis et butoir
- Guidage au sol sans jeu
- Goupille de réglage en hauteur
- plus pièces de chaque version
taille de porte Junior 100 Z / Z Pocket:
hauteur max.: 4000 / 4000 mm
largeur max.: 3000 / 1500 mm
épaisseur de porte: 35 - 80 mm
poids de la porte: 100 kilos
nombre de vantaux: 1
- Rail de roulement Junior 100 Z + Pocket, voir 21.110.27-86
- Rail de roulement Junior 100 Z montage mural, voir 21.110.40-96
- Rail de roulement avec extension de la distance, voir 21.110.20-73
- Rail de roulement Junior 100 Z montage au plafond, voir 21.111.00-56
- Cache à clipser pour Junior 100 Z, voir 21.106.10-66
- Clip pour cache pour Junior 100 Z, voir 21.005.17
- Rail d'écartement pour Junior 100 Z, voir 21.030.85
- Jeu d'ectrémites pour Junior 100 Z, voir 21.106.31-34
- Butoir de porte pour Junior 100 Z, voir 21.109.21+22
- Étrier d'isolation phonique SoundEx pour Junior Z, voir 21.116.42
- Rail de guidage pour Junior 100 Z Pocket, voir 21.123.14
- Set de montage et démontage pour Junior 100 Z Pocket, voir 21.108.11-13
- Cache à clipser pour pour Junior Z Pocket, voir 21.108.14
- Guidage de fond inférieur pour Junior 100, voir 21.108.05
- Pièce de fixation pour rail de roulement pour rails démontables, voir 21.108.20

- Marque
- Hawa
- Poids de la porte max.
- 100 kg
- Système
- Junior 100
- Nombre de vantaux
- 1
- Largeur de porte
- 3000 mm
- Hauteur de porte
- 4000 mm
- Épaisseur de porte
- 35 - 80 mm
- Type de porte
- Bois
- Montage
- Montage mural ou au plafond
- Construction
- À roulement en haut
- Type de produit
- Ferrure pour porte coulissante




