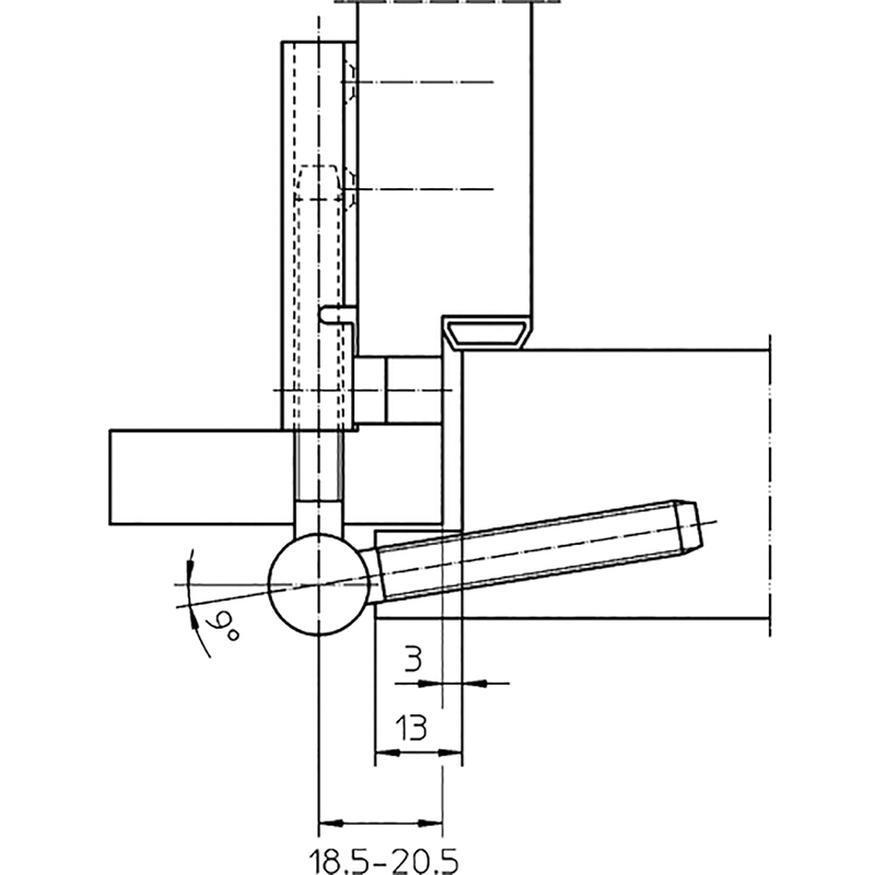
Flügelteil SIMONSWERK V 0020



10.122.01



prev
next

Flügelteil SIMONSWERK V 0020
10.122.
vernickelt, mit wartungsfreier Gleitlagertechnik, für gefälzte Türen, Rollen-Ø 15 mm
- Rahmenteil siehe 10.122.
- Bohrlehre siehe 99.180.05

- Marke
- Simonswerk
- Produktart
- Flügelteil
- Material
- Stahl
- Rollen-Ø
- 15 mm
- Flügelbolzen Ø
- M8 mm
- Flügelbolzen
- 50 mm
- Flügelgewicht max.
- 40 kg
- Falzart
- gefälzt
- Modell
- Variant






